
埼玉県飯能市で空き店舗の再生や地域メディア運営などを行うAkinaiは、飯能市本町に、個人の“好き”をかたちにするためのシェアスペース「偏愛デパートメント・やまにわ」を12月にオープンする。
同事業は、埼玉県商業・サービス産業支援課の「新たな担い手」による商店街賑わい創出事業補助金、および飯能市商店街インキュベーション施設事業補助金の交付を受けて実施している事業だ。
テーマは「偏愛がまちをおもしろくする」
「偏愛デパートメント・やまにわ」は、西武池袋線飯能駅から徒歩11分、飯能大通り商店街、飯能商工会議所となりの好立地にある。
元鋼材店をリノベーションして生まれた複合施設だ。

1階奥のアトリエスペース

1階奥のシェアキッチン
同施設では、店舗・アトリエ・オフィス・喫茶スペース・製造許可付きシェアキッチンを備えている。

1階道路側には、ブックカフェや小売店が入居予定で、

接客を主とするショップスペースは3店舗ある。
創業希望者や小規模事業者が一歩を踏み出すための拠点として、最大18事業者の入居が可能。事業者は最長3年間の入居期間を経て、卒業後は飯能市中心街の空き店舗への独立出店を目指していく。
ここで重視されるのは、収益性よりも“偏愛”。どうしようもなく好きで、深くこだわりのあるテーマを持つこと。「素敵な人、おもしろい人はみんな自分の偏愛を持っている」という考えから、Akinaiがまちづくりを通じて出会ってきた多くの個人の情熱を、商いという形で社会に発信する場所となる。
飯能市から始める次世代のまちづくりモデル
飯能市は都心から電車で約1時間の郊外都市で、自然とまちなかが近い距離にあることもあり、子育て世代の移住が多いエリアだ。また、「好きなことを仕事にしたい」「週末から創業に挑戦したい」「アトリエを持ちたい」という人も多く、自分のペースでスタートできるのが特徴でもあるという。
「偏愛デパートメント・やまにわ」は、そうした新しい価値観を持つ人たちの「初めての店」を支援し、地域とのつながりを生むことを目的としている。施設内には、現役ブルワーが営むクラフトビールが飲める本屋「本とビール ・カモシカ」をはじめ、カレー、タイマッサージ、グラノーラ、レジンアート、鍼灸、彫刻家など、多様な“偏愛”を軸とした事業者の入居が予定されている。
入居者募集&クラウドファンディング実施中!

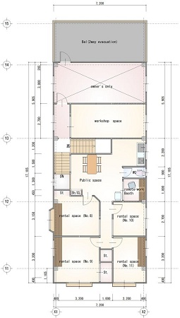
1階平面図(計画中のもの)
「偏愛デパートメント・やまにわ」では、入居者を募集している。
入居期間は最短3か月〜最長3年で、賃料は1Fシェアスペースが月額30,000円(税別)、

2階はシェアオフィスや共用スペース(計画中のもの)
2F個室が月額40,000円(税別)、シェアキッチンが月額25,000円(税別)。興味のある人は、Akinai公式HPに記載されている電話番号から赤井氏・伊藤氏宛に問い合わせるか、問い合わせページより連絡をしよう。
また、「偏愛デパートメント・やまにわ」のオープンにあたり、クラウドファンディングを実施中。飯能の街の活性化に賛同し、参加・応援する仲間を募集している。詳細はプロジェクトページで確認を。
飯能のまちなかに“偏愛”が集まる小さな商店街!「偏愛デパートメント・やまにわ」に注目してみては。
■偏愛デパートメント・やまにわ
住所:埼玉県飯能市本町1-9
CAMPFIRE:https://camp-fire.jp
プロジェクト名:『偏愛』でまちをおもしろく!創業特化のシェアスペース「やまにわ」を作りたい!
Akinai公式HP:https://akinai-inc.com
(yukari)
The post 【埼玉県飯能市】個人の“好き”をかたちにするシェアスペース「偏愛デパートメント・やまにわ」OPEN first appeared on ストレートプレス:STRAIGHT PRESS - 流行情報&トレンドニュースサイト.

